35 502 ₴
Калориферні установки (тепловентилятори) обігрівають виробничі та службово-побутові приміщення, підприємства, їдальні, спортивні зали, теплиці тощо.
Калориферна установка - промислова модифікація, розроблена для тих випадків, коли експлуатація здійснюється виключно фахівцями-професіоналами. Вона встановлюється в пожежо- і вибухобезпечних приміщеннях і може працювати у двох режимах, як у вентиляційному, так і опалювально-вентиляційному.
Калориферна установка Титан СФОЦ підключається до трифазної мережі живлення з номінальною напругою 220 В і частотою 50 Гц, потужністю 6 кВт.
При подачі напруги трубчасті нагрівальні елементи нагрівають повітря, а вентилятор нагнітає нагріте повітря в опалювальне приміщення. Терморегулятор підтримує задану температуру повітря.
Калориферні установки Титан СФОЦ реверсні виготовляються з відцентровим вентилятором, який нагнітає повітря в нагрівальний блок-калорифер.
Ціни на калориферні установки Титан вказані з урахуванням використання стандартних вентиляторів. При застосуванні інших вентиляторів ціни підлягають коригуванню.
За погодженням із замовником також можливе виготовлення калориферних установок Титан з виносним пультом управління.
Характеристики:
|
Номінальна потужність, кВт |
12 |
|
Типорозмір вентилятора, № |
2,5 |
|
Потужність приводу вентилятора, кВт |
0,37 |
|
Максимальна продуктивність повітрям, м3/год |
900 |
|
Напруга, В |
380 |
|
Потужність одного ТЕНа, кВт |
2 |
|
Кількість ступенів, шт. |
2 |
|
Перепад температури, оС |
30-70 |
|
Ширина, мм |
470 |
|
Довжина, мм |
1050 |
|
Висота, мм |
740 |
|
Маса, кг |
50 |
Габаритне креслення:

|
H, мм |
В, мм |
L, мм |
ØD, мм |
ØA, мм |
|
600 |
500 |
1090 |
253 |
175х175 |
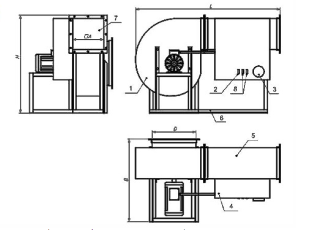
Конструкція калориферної установки Титан типу СФОЦ реверсна:

1.Вентилятор;
2.Клавіша управління;
3.Терморегулятор;
4.Блок управління;
5.Калорифер;
6. Загальна рама;
7.Калорифер з ТЕНами;
8.Клавіші управління.

| Основні | |
|---|---|
| Вага | 50 кг |
| Виробник | Титан |
| Гарантійний термін | 12 міс |
| Витрата повітря | 900 куб.м/год |
| Країна виробник | Україна |
| Спосіб установки | Підлоговий |
| Потужність | 12 кВт |
| Вид енергоносія | Електрика |
| Вид поверхні калорифера | Гладкотрубчата |
| Кількість рядів труб в калорифері | 4 |
| Габаритні і приєднувальні розміри | |
| Висота | 740 мм |
| Ширина | 470 мм |
| Довжина | 1050 мм |
| Додаткові характеристики електричних нагрівачів | |
| Напруга мережі | 380~400 В |
| Кількість ступенів потужності | 2 шт. |